| Основные характеристики | |
|---|---|
| Тип поверхности | варочная |
| Тип управления | механическое |
| Тип переключателей | поворотные |
| Установка рабочей поверхности | независимая |
| Материал поверхности | эмалированная сталь |
| Материал решетки | чугун |
| Варочная поверхность | |
| Количество конфорок | 4 |
| Левая ближняя конфорка | газовая, мощность 1000 Вт, одноконтурная |
| Левая дальняя конфорка | газовая, мощность 1700 Вт, одноконтурная |
| Правая ближняя конфорка | газовая, мощность 1700 Вт, одноконтурная |
| Правая дальняя конфорка | газовая, мощность 3000 Вт, одноконтурная |
| Суммарная мощность газовых конфорок | 7400 Вт |
| Особенности | |
| Электрподжиг | есть |
| Автоматический электроподжиг | есть |
| Защита от утечки газа | система «газ-контроль» |
| Размеры и цвет | |
| Цвет | черный |
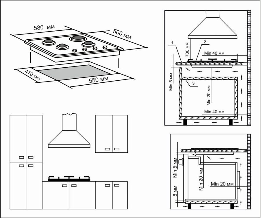
| Размеры (ШхГ) | 580 х 500 мм |
| Размеры ниши для встраивания (ШхГ) | 550 х 470 мм |
| Вес (нетто) | 10.5 кг |
Отзывы не найдены